Т-профілі для підвісних стель

/ Т-подібні профілі

Т-профіль – несуча конструкція підвісної стелі з плитами

Що таке підвісна стеля на Т-профілях?
Стельова конструкція з Т-профілю складається з окремих профілів довжиною 600 мм, 1200 мм та 3600 мм, які мають спеціальні замки для з'єднання між собою. Така стеля легко збирається вручну і кріпиться до основної стелі на спеціальних підвісах. Після цього в зібрану конструкцію з Т-профілів вставляються або плити (гіпсокартонні, мінеральні, металеві, скляні, дзеркальні, дерев'яні тощо), або металеві касети грильято GLK.

«КРАФТ Декенсістем Україна» випускає дві основні моделі профілів: NOVA (Nova Pro) та FORTIS. Також під замовлення виробляємо Т-профілі спеціального призначення KRAFT HD (підвищеної міцности) та KRAFT RH100 (підвищеної вологостійкості).

Ширина видимої частини профілів може становити 24 мм (стандарт) або 15 мм (тонкий). Між собою моделі відрізняються експлуатаційними характеристиками та вартістю. Всі моделі повністю сумісні одна з одною.
Схема монтажу підвісної стелі на основі Т-профілів KRAFT

Основні характеристики Т-профілів KRAFT

KRAFT Nova / Nova Pro
Колір
Стандартні кольори: RAL 9003 (білий) / RAL9003 (білий), RAL9006 (сірий) та RAL7024 (графітовий)
Ширина
24 мм
Навантаження*
до 4,5 кг/м2 / до 5,5 кг/м2
Матеріал
оцинкована сталь з полімерним покриттям
Пожежна безпека
класс А1 – негорючий (НГ)
Пожежний компенсатор
Так
Європейський стандарт
EN 13964:2004+A1:2006
Гарантія
3 роки
* Максимальне навантаження при стандартній схемі монтажу
KRAFT Fortis
Колір
Стандартні кольори: RAL 9003 (білий), RAL 9005 (чорний), RAL 9006 (сірий металік), RAL7024 (графітовий), RAL8017 (шоколадний). Можливе фарбування в будь-який колір RAL.
Ширина
15 мм, 24 мм
Навантаження*
до 7,0 кг/м2
Матеріал
оцинкована сталь з полімерним покриттям
Пожежна безпека
класс А1 – негорючий (НГ)
Пожежний компенсатор
Так
Європейський стандарт
EN 13964:2004+A1:2006
Гарантія
3 роки
* Максимальне навантаження при стандартній схемі монтажу
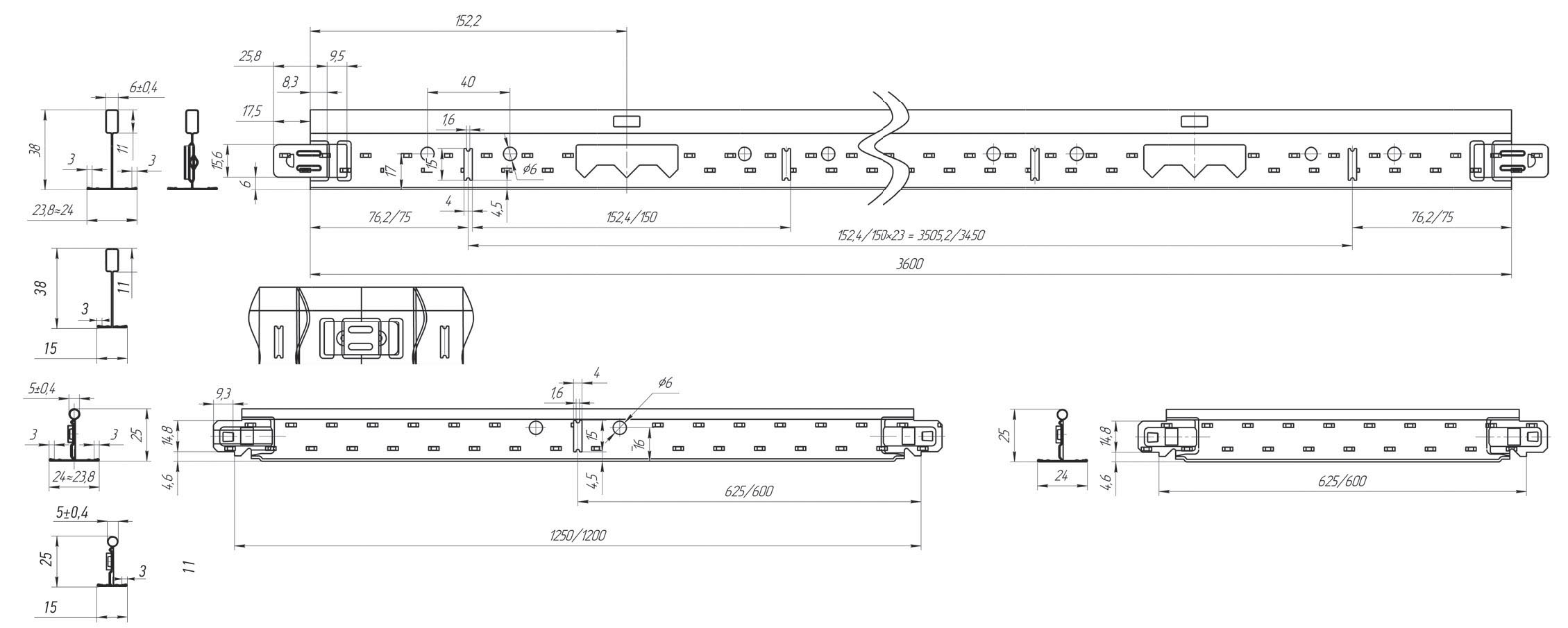
Розміри Т-профілів KRAFT
Схема роботи пожежного компенсатора
Спеціальний виріз компенсує температурне розширення металу при пожежі та запобігає обваленню стелі.

Комплектація підвісної стелі на Т-профілях KRAFT

1. Основний Т-профіль довжиною 3600 мм, висотою 38 мм.
2. Поперечний Т-профіль довжиною 1200 мм, висотою 25 мм.
3. Повздовжній Т-профіль довжиною 600 мм, висотою 25 мм.
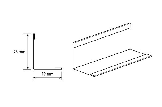
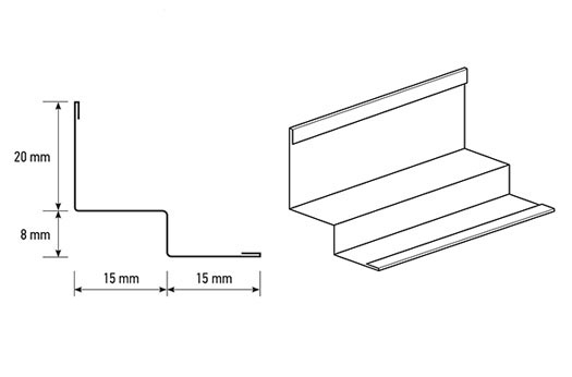
4. Пристінний L-профіль (19х24 мм) або W-профіль (20х15х8х15 мм) довжиною 3000 мм.
5. Підвіс (дріт з гаком, дріт з вушком, розжимна пружина).
6. Плита підвісної стелі або касета грильято GLK.
Пристінний L-профіль
Пристінний W-профіль
Підвіс "метелик" у зборі

Інструкції з монтажу підвісних стель на Т-профілях

Відеоінструкція з монтажу підвісних стель на Т-профілях
Технологічна карта монтажу підвісної стелі з Т-профілів
Image
Image
Провідний виробник підвісних стель в Україні
KRAFT Deckensysteme Ukraine
Україна, Київ, вул. Пухівська, 4
kraft@kraftds.com

+38 067 850 0073